Eagle For Mac
- 163,962 downloads Updated: May 31, 2020 Demo. Review Free Download specifications changelog 100% CLEAN report malware. Powerful and feature packed macOS application designed to make it very easy for you to effortlessly create.
- The emulator will allow you to run the Eagle Eye app. The emulate helps to replace the touch technology present in your mobile device. It comes with keyboard and mouse buttons controls. For most apps and games, they need to use the mouse, but others need the keyboard. The app will run on Windows 7/8/10 and Mac OS computers.
- For Mac Users From the Advancement Resources page: Ensure you have Adobe Reader 9 or later Press your “control” key and at the same time (while pressing the “control” key), click on this workbook link: Eagle Scout Service Project Workbook, No. Once the dialog box appears, click on.
Eagle For Mac
Just press the capture key (F1 or Option-F1) to import a Web page, mail messages, the selected items in Evernote or other apps, or any file on your Mac.: EagleFiler libraries use an open format: regular files and folders that are fully accessible to your other applications.Skip importing duplicate files and remove duplicate messages from mailboxes.: Press Shift-F1 to make a quick note.
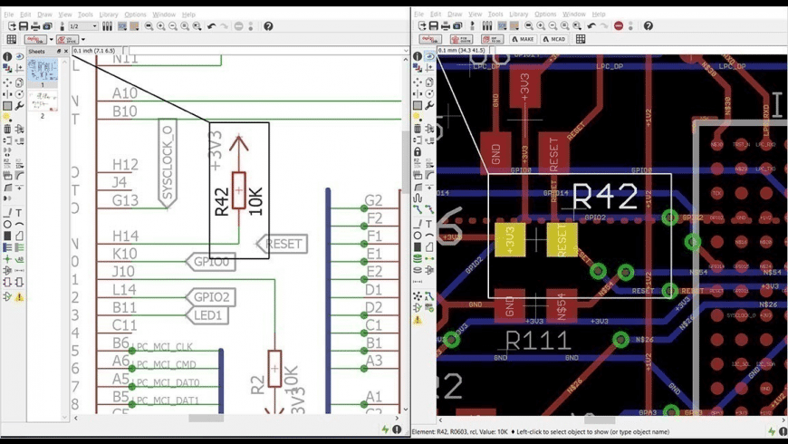
Download CadSoft Eagle Professional 7.6 for Mac free latest version offline setup. CadSoft Eagle Professional 7.6 for Mac is a professional application for creating design circuit boards and electronic circuit designs.
CadSoft Eagle Professional 7.6 for Mac Review
A powerful application for the circuit board and electronic boards designing, CadSoft Eagle Pro comes with a variety of powerful tools and a bundle of high-speed tools to create circuit designs. The application provides a complete three-dimensional view of the designs and creates virtual boards from the real parts.

A simple to use and intuitive user interface helps the users to quickly understand the application. View the 3D images and make use of auto and manual routing features. Create custom designs with few efforts in less time. Plugins support enhances the functionality of the application.
It features a graphical layout editor with complete PCB design features to meet all the user needs. The application is used worldwide and it is open for component libraries to easily create circuit designs. Export the reports and structured XML files and provides complete support for all the circuit design tasks.
Features of CadSoft Eagle Professional 7.6 for Mac
- Powerful application for electronic circuit designing
- Simple and easy to use application with a straightforward set of tools
- Powerful PCB design tool for the engineers
- Make use of a rich library of components
- Use components libraries with community support
- Numerous video tutorials to understand the application
- Easily solve the design problems and a variety of powerful tools
Technical Details of CadSoft Eagle Professional 7.6 for Mac
- File Name: EAGLE.v7.6.0.MacOSX.dmg
- File Size: 77 MB
- Developer: CadSoft
System Requirements for CadSoft Eagle Professional 7.6 for Mac
- Mac OS X 10.6 or later
- 1 GB free HDD
- 1 GB RAM
- Intel Processor only
CadSoft Eagle Professional 7.6 for Mac Free Download
Eagle Machine Shop
Download CadSoft Eagle Professional 7.6 latest version offline setup for Mac OS X by clicking the below button.
